Banner background

1 Room in a 1 Bed, 1 Bath in Duke University Area - $812

People Interested in the Apartment
Apartment for Rent

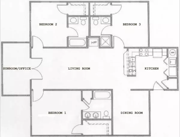
Beautiful 3 Bedroom 3 Bathroom Near Duke! Third floor apartment is conveniently located to Duke's medical/research West campus! You can take a quick walk or bike ride to campus or the hospital, or step outside your home for immediate bus stop acc...

Beautiful 3 Bedroom 3 Bathroom Near Duke! Third floor apartment is conveniently located to Duke's medical/research West campus! You can take a quick walk or bike ride to campus or the hospital, or step outside your home for immediate bus stop access. Each unit has 1426 sq ft living area, sun-room with French doors, separate dining room, carpeted and/or hardwood floors, HVAC throughout. There are 3 huge bedrooms, each with ceiling fan, walk-in closet, and private bath/shower. Fully equipped kitchen, segregated enclosed area with washer and dryer. Bike and Scooter racks near each building. This is on the 3rd floor

Coliving in Duke University Area - Durham, Raleigh
Coliving in Duke University Area - Durham, Raleigh
Coliving in Duke University Area - Durham, Raleigh
Coliving in Duke University Area - Durham, Raleigh
Coliving in Duke University Area - Durham, Raleigh
Coliving in Duke University Area - Durham, Raleigh
Coliving in Duke University Area - Durham, Raleigh
Coliving in Duke University Area - Durham, Raleigh
Coliving in Duke University Area - Durham, Raleigh
Coliving in Duke University Area - Durham, Raleigh
Coliving in Duke University Area - Durham, Raleigh
Coliving in Duke University Area - Durham, Raleigh
Coliving in Duke University Area - Durham, Raleigh
Coliving in Duke University Area - Durham, Raleigh
Coliving in Duke University Area - Durham, Raleigh
Coliving in Duke University Area - Durham, Raleigh
Coliving in Duke University Area - Durham, Raleigh
Coliving in Duke University Area - Durham, Raleigh
Rent: $812
Move in date: November 2025
Lease Duration: 3 Months, 6 Months, 1 Year
Address: 929 #D34 Morreene Rd
Furniture: Shared Space Only
Bedrooms: 1
Baths: 1
Pets: No Pets
LAUNDRY IN BUILDING
PARKING
WALK IN CLOSET
WIFI