Banner background

1 Room in a 5 Beds, 2 Baths in Greenwood - $1,800

People Interested in the Apartment
Apartment for Rent

Full bedroom in 5 bed/2 bath home in Sunset Park #586 F

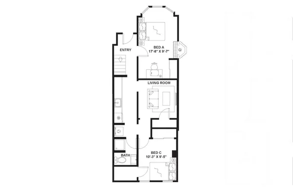
Move in this February and save up to $300 on your stay! Use code: "HELLOFEB". PLEASE NOTE: This is a private room in a shared apartment. You will have your own bedroom and shared common areas (kitchen, bathroom, etc.) with other residents. Full bedroom in a 5 bedroom / 2 bathroom apartment! Check out 3D tour now: https://jnhm.es/Ul This Full room in Sunset Park offers flexible lease lengths, including a standard 12-month term and options up to 18 months. You pick your custom start and end date. Monthly rent rate is determined by furnishing preference, move-in date and move-out date. Speak to a June representative for recommendations on the best stay duration for the lowest rate. Amenities of this home: Furnished Common Areas, Wi-Fi - Paid separately (High-Speed), Guarantors Allowed, Street parking - City permit required, Laundry in home (free), Mini Split, Hardwood Flooring, Microwave, Oven, Refrigerator, also, this unit is conveniently located, several local parks, restaurants and bars are just minutes away. About June Homes: Welcome to the easiest rental experience of your life. Rent furnished or unfurnished apartments available with a flexible lease, including a standard 12-month term and options up to 18 months. As a resident, you’ll have access to 24/7 support and monthly cleanings of the home’s shared spaces. Sign up now to apply online for your next home with June: https://jnhm.es/diggz-sign Use this listing ID when speaking to June team: #586 F



The rental process:
1. Inquire in our listing if it's the right one for you.
2. Easily apply online and get approved in as little as 3 hours.
3. Sign a lease agreement.
4. Make your payment and 1 month security deposit.
5. Receive your door code and Wi-Fi password virtually through our app.

Coliving in Greenwood - Brooklyn, New York
Coliving in Greenwood - Brooklyn, New York
Coliving in Greenwood - Brooklyn, New York
Coliving in Greenwood - Brooklyn, New York
Coliving in Greenwood - Brooklyn, New York
Coliving in Greenwood - Brooklyn, New York
Coliving in Greenwood - Brooklyn, New York
Coliving in Greenwood - Brooklyn, New York
Coliving in Greenwood - Brooklyn, New York
Coliving in Greenwood - Brooklyn, New York
Coliving in Greenwood - Brooklyn, New York
Coliving in Greenwood - Brooklyn, New York
Coliving in Greenwood - Brooklyn, New York
Coliving in Greenwood - Brooklyn, New York
Coliving in Greenwood - Brooklyn, New York
Coliving in Greenwood - Brooklyn, New York
Coliving in Greenwood - Brooklyn, New York
Coliving in Greenwood - Brooklyn, New York
Coliving in Greenwood - Brooklyn, New York
Coliving in Greenwood - Brooklyn, New York
Coliving in Greenwood - Brooklyn, New York
Coliving in Greenwood - Brooklyn, New York
Coliving in Greenwood - Brooklyn, New York
Coliving in Greenwood - Brooklyn, New York
Coliving in Greenwood - Brooklyn, New York
Coliving in Greenwood - Brooklyn, New York
Coliving in Greenwood - Brooklyn, New York
Coliving in Greenwood - Brooklyn, New York
Coliving in Greenwood - Brooklyn, New York
Coliving in Greenwood - Brooklyn, New York
Coliving in Greenwood - Brooklyn, New York
Coliving in Greenwood - Brooklyn, New York
Coliving in Greenwood - Brooklyn, New York
Coliving in Greenwood - Brooklyn, New York
Rent: $1,800
Move in Date: March 2026
Lease Duration: Month-to-Month, 3 Months, 6 Months, 1 Year
Address: 421 36th Street
Square Feet: 175
Furniture: Shared Space Only
Bedrooms: 5
Baths: 2
Pets: No Pets
WIFI
WASHER/DRYER