Banner background

1 Room in a 4 Beds, 1.5 Baths in Morningside Heights - $2,225

People Interested in the Apartment
Apartment for Rent

Full bedroom in 4 bed/1.5 bath home in Upper West Side #1580 D

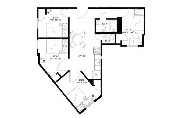
Get a $150 one-time rent credit when you move in before February 10, 2026. PLEASE NOTE: This is a private room in a shared apartment. You will have your own bedroom and shared common areas (kitchen, bathroom, etc.) with other residents. Full bedroom in a 4 bedroom / 1.5 bathroom apartment! Check out 3D tour now: https://jnhm.es/8bf This Full room in Upper West Side offers flexible lease lengths, including a standard 12-month term and options up to 18 months. You pick your custom start and end date. Monthly rent rate is determined by furnishing preference, move-in date and move-out date. Speak to a June representative for recommendations on the best stay duration for the lowest rate. Amenities of this home: Furnished Common Areas, Wi-Fi - Paid separately (High-Speed), Guarantors Allowed, Dine in kitchen, Laundry in home (free), Dishwasher, Hardwood Flooring, Microwave, Oven, Refrigerator, also, this unit is conveniently located, several local parks, restaurants and bars are just minutes away. About June Homes: Welcome to the easiest rental experience of your life. Rent furnished or unfurnished apartments available with a flexible lease, including a standard 12-month term and options up to 18 months. As a resident, you’ll have access to 24/7 support and monthly cleanings of the home’s shared spaces. Sign up now to apply online for your next home with June: https://jnhm.es/diggz-sign Use this listing ID when speaking to June team: #1580 D



The rental process:
1. Inquire in our listing if it's the right one for you.
2. Easily apply online and get approved in as little as 3 hours.
3. Sign a lease agreement.
4. Make your payment and 1 month security deposit.
5. Receive your door code and Wi-Fi password virtually through our app.

Coliving in Morningside Heights - Manhattan, New York
Coliving in Morningside Heights - Manhattan, New York
Coliving in Morningside Heights - Manhattan, New York
Coliving in Morningside Heights - Manhattan, New York
Coliving in Morningside Heights - Manhattan, New York
Coliving in Morningside Heights - Manhattan, New York
Coliving in Morningside Heights - Manhattan, New York
Coliving in Morningside Heights - Manhattan, New York
Coliving in Morningside Heights - Manhattan, New York
Coliving in Morningside Heights - Manhattan, New York
Coliving in Morningside Heights - Manhattan, New York
Coliving in Morningside Heights - Manhattan, New York
Coliving in Morningside Heights - Manhattan, New York
Coliving in Morningside Heights - Manhattan, New York
Coliving in Morningside Heights - Manhattan, New York
Coliving in Morningside Heights - Manhattan, New York
Coliving in Morningside Heights - Manhattan, New York
Coliving in Morningside Heights - Manhattan, New York
Coliving in Morningside Heights - Manhattan, New York
Coliving in Morningside Heights - Manhattan, New York
Coliving in Morningside Heights - Manhattan, New York
Coliving in Morningside Heights - Manhattan, New York
Coliving in Morningside Heights - Manhattan, New York
Coliving in Morningside Heights - Manhattan, New York
Rent: $2,225
Move in Date: May 2026
Lease Duration: Month-to-Month, 3 Months, 6 Months, 1 Year
Address: 354 Cathedral Park Way
Square Feet: 94
Furniture: Fully Furnished
Bedrooms: 4
Baths: 1.5
Pets: No Pets
DISHWASHER
WIFI
WASHER/DRYER
Similar Colivings to consider

There’s plenty more coliving rooms to Discover

Find a Coliving in New York