Banner background

1 Room in a 5 Beds, 2 Baths in East Harlem - $1,750

People Interested in the Apartment
Apartment for Rent

Full bedroom in 5 bed/2 bath home in West Harlem #102 2C

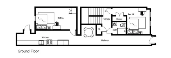
Move in this February and save up to $300 on your stay! Use code: "HELLOFEB". PLEASE NOTE: This is a private room in a shared apartment. You will have your own bedroom and shared common areas (kitchen, bathroom, etc.) with other residents. Full bedroom in a 5 bedroom / 2 bathroom apartment! Check out 3D tour now: This Full room in West Harlem offers flexible lease lengths, including a standard 12-month term and options up to 18 months. You pick your custom start and end date. Monthly rent rate is determined by furnishing preference, move-in date and move-out date. Speak to a June representative for recommendations on the best stay duration for the lowest rate. Amenities of this home: Dishwasher, Furnished Common Areas, Wi-Fi - Paid separately (High-Speed), Outdoor space, Guarantors Allowed, 32-inch Flat-Screen TV, Laundry in home (free), Hardwood Flooring, Microwave, Oven, Refrigerator, also, this unit is conveniently located, several local parks, restaurants and bars are just minutes away. About June Homes: Welcome to the easiest rental experience of your life. Rent furnished or unfurnished apartments available with a flexible lease, including a standard 12-month term and options up to 18 months. As a resident, you’ll have access to 24/7 support and monthly cleanings of the home’s shared spaces. Sign up now to apply online for your next home with June: https://jnhm.es/diggz-sign Use this listing ID when speaking to June team: #102 2C



The rental process:
1. Inquire in our listing if it's the right one for you.
2. Easily apply online and get approved in as little as 3 hours.
3. Sign a lease agreement.
4. Make your payment and 1 month security deposit.
5. Receive your door code and Wi-Fi password virtually through our app.

Coliving in East Harlem - Manhattan, New York
Coliving in East Harlem - Manhattan, New York
Coliving in East Harlem - Manhattan, New York
Coliving in East Harlem - Manhattan, New York
Coliving in East Harlem - Manhattan, New York
Coliving in East Harlem - Manhattan, New York
Coliving in East Harlem - Manhattan, New York
Coliving in East Harlem - Manhattan, New York
Coliving in East Harlem - Manhattan, New York
Coliving in East Harlem - Manhattan, New York
Coliving in East Harlem - Manhattan, New York
Coliving in East Harlem - Manhattan, New York
Coliving in East Harlem - Manhattan, New York
Coliving in East Harlem - Manhattan, New York
Coliving in East Harlem - Manhattan, New York
Coliving in East Harlem - Manhattan, New York
Coliving in East Harlem - Manhattan, New York
Coliving in East Harlem - Manhattan, New York
Coliving in East Harlem - Manhattan, New York
Coliving in East Harlem - Manhattan, New York
Coliving in East Harlem - Manhattan, New York
Coliving in East Harlem - Manhattan, New York
Coliving in East Harlem - Manhattan, New York
Coliving in East Harlem - Manhattan, New York
Coliving in East Harlem - Manhattan, New York
Coliving in East Harlem - Manhattan, New York
Coliving in East Harlem - Manhattan, New York
Coliving in East Harlem - Manhattan, New York
Rent: $1,750
Move in Date: March 2026
Lease Duration: Month-to-Month, 3 Months, 6 Months, 1 Year
Address: 108 West 119th Street
Square Feet: 90
Furniture: Fully Furnished
Bedrooms: 5
Baths: 2
Pets: No Pets
CABLE
DISHWASHER
WIFI
WASHER/DRYER